Trascrizione del video
Questo tutorial di QCAD fornisce un'introduzione alla visualizzazione e alla navigazione dei disegni. Impareremo a utilizzare i principali strumenti di zoom e panoramica.
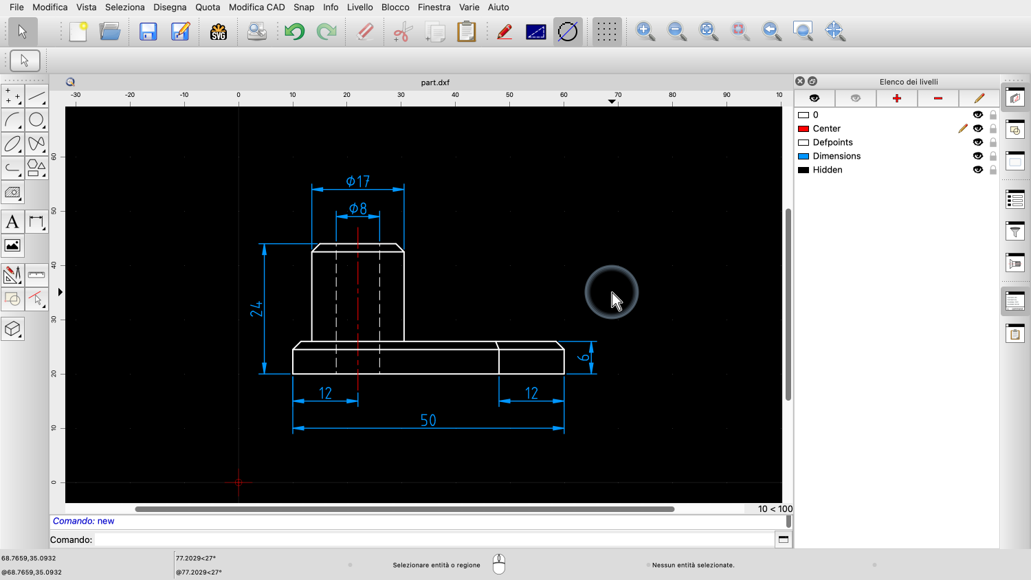
Esempio di disegno: part.dxf
Vediamo questo esempio di disegno. Mostra una vista laterale di una parte meccanica.
Il pezzo è largo 50 unità di disegno.
E 24 unità di altezza.
Queste sono le misure del pezzo meccanico nel mondo reale. Il pezzo avrà queste misure una volta prodotto.
Sul nostro computer, il pezzo sarà molto probabilmente visualizzato con dimensioni completamente diverse se lo misurassimo con un righello sullo schermo.
Questo va bene. QCAD può visualizzare il nostro disegno in qualsiasi scala desiderata.
La dimensione del disegno sul display in un determinato momento non ha alcun effetto sulla dimensione assoluta degli oggetti del disegno.
In questa esercitazione impareremo a modificare l'ingrandimento e la posizione della visualizzazione del disegno sullo schermo.
In questa esercitazione non viene modificato nulla delle dimensioni assolute o della posizione degli oggetti nel disegno.
Cambia solo la parte del disegno che stiamo guardando e la distanza da cui lo guardiamo.
Tenetelo presente per il resto di questa esercitazione.
Per prima cosa, facciamo uno zoom per visualizzare un dettaglio del disegno da vicino.
È possibile aumentare il fattore di visualizzazione del disegno utilizzando il pulsante dello strumento con la lente di ingrandimento e il segno più in alto.
Ad ogni clic del pulsante, la scala del disegno sullo schermo aumenta.
In alternativa, si può premere il tasto Più o Uguale sulla tastiera.
Lo strumento per ridurre lo zoom riduce di conseguenza la visualizzazione del disegno.
Possiamo anche premere il tasto meno sulla tastiera per ridurre lo zoom.
Se il mouse è dotato di una rotella, di solito è più comodo usarla per ingrandire rapidamente un dettaglio del disegno.
È sufficiente ruotare la rotella del mouse lontano dall'utente per effettuare lo zoom.
Si noti che con la rotellina del mouse si esegue lo zoom verso la posizione del cursore del mouse. In questo caso, abbiamo eseguito lo zoom verso il centro superiore del cilindro.
Per ridurre lo zoom, ruotare la rotella del mouse verso di sé.
Qui, zoomiamo dallo stesso punto.
Notate come il centro del cilindro rimanga al suo posto, mentre la parte intorno ad esso viene visualizzata sempre più piccola.
Allo stesso modo, possiamo ingrandire rapidamente qualsiasi altra parte del disegno.
Se la rotella del mouse si muove troppo velocemente, è possibile regolare la velocità nelle preferenze dell'applicazione.
A seconda della sensibilità della rotellina del mouse, potrebbe essere necessario impostare il fattore di zoom della rotellina del mouse su un valore inferiore, ad esempio 1,02 invece del valore predefinito di 1,2.
Se abbiamo ingrandito un dettaglio come questo, potremmo volerci spostare nel disegno, così come potremmo spostare un grande foglio sulla nostra scrivania. Questa operazione si chiama "panoramica".
In QCAD è possibile eseguire una panoramica utilizzando il pulsante centrale del mouse. A seconda del mouse in uso, il pulsante centrale del mouse potrebbe essere la rotella del mouse che può essere premuta come un pulsante.
Teniamo premuto il tasto centrale del mouse per avviare la panoramica.
Quindi si sposta il cursore del mouse per spostare il disegno sul display.
Si può ripetere l'operazione per spostare ulteriormente il disegno fino a quando non è visibile la parte desiderata.
È possibile tornare alla vista completa dell'intero disegno in qualsiasi momento utilizzando il cosiddetto "zoom automatico".
Lo zoom automatico regola la scala della visualizzazione per garantire la visibilità di tutte le parti del disegno.
Un altro modo per ingrandire un dettaglio di un disegno è lo zoom finestra.
Questo strumento ingrandisce un'area specificata da una finestra rettangolare.
Fare clic sui due angoli opposti dell'area rettangolare che si desidera ingrandire per ingrandire il dettaglio.
Invece di fare clic sui due angoli, possiamo anche premere il pulsante sinistro del mouse su un angolo e rilasciarlo sull'altro per trascinare un rettangolo.
Non appena si lascia il pulsante del mouse, QCAD esegue uno zoom sull'area scelta.
Come gli altri strumenti interattivi di QCAD, lo strumento di zoom della finestra rimane attivo fino a quando non lo si annulla con un clic del tasto destro del mouse o premendo il tasto Escape.
Ora dovreste avere un'idea di come navigare nel vostro disegno utilizzando le tecniche di base di zoom e panoramica.
Assicuratevi di fare pratica con la vostra installazione di QCAD.
Grazie per aver seguito questa esercitazione di QCAD.
