Video Mitschrift
Dieses QCAD Tutorial bietet eine Einführung in das Betrachten und Navigieren von Zeichnungen. Wir werden lernen, wie man die wichtigsten Werkzeuge zum Vergrössern, Verkleinern und Verschieben der Ansicht benutzt.
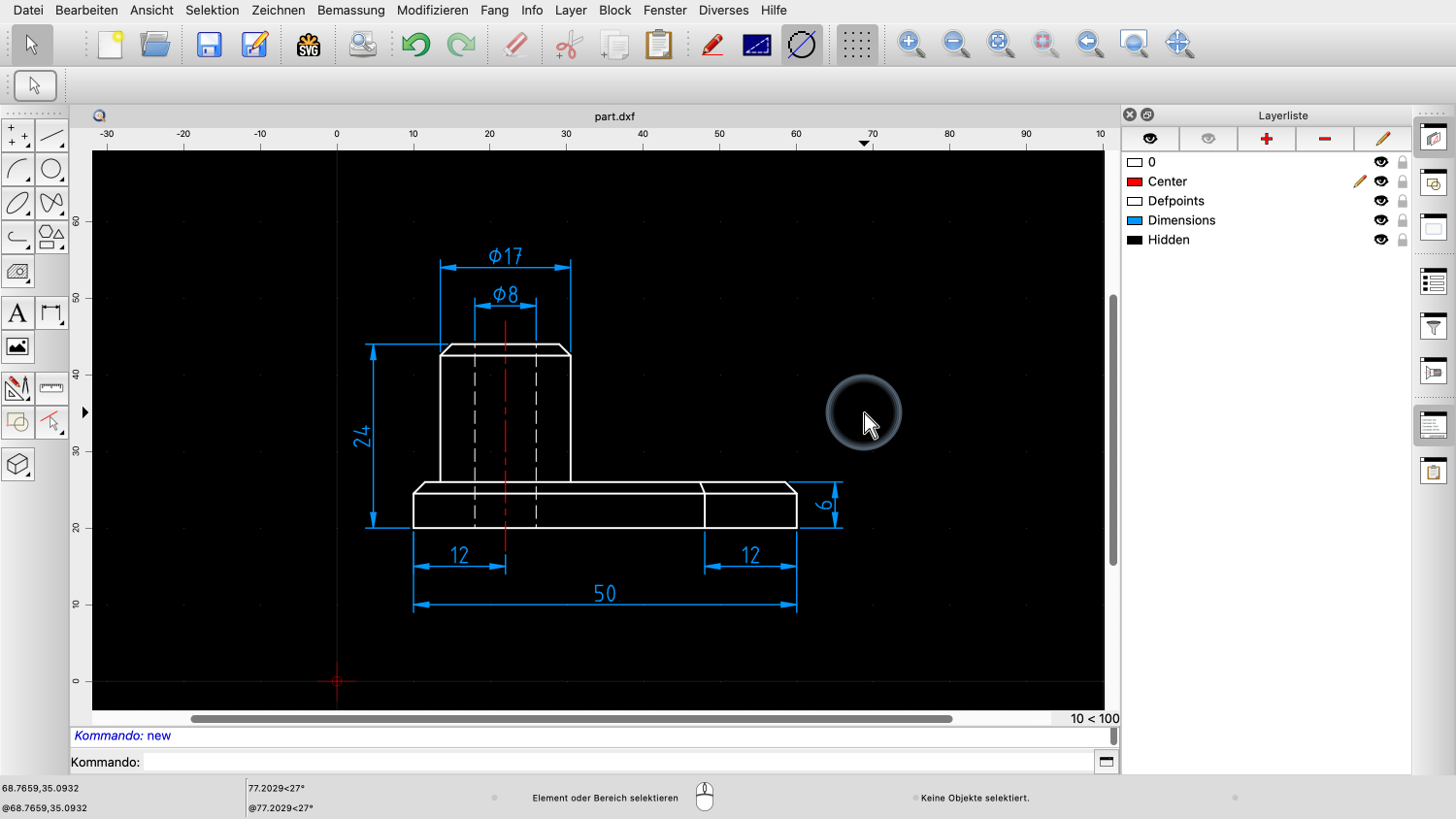
Beispielzeichnung: part.dxf
Werfen wir einen Blick auf diese Beispielzeichnung. Sie zeigt eine Seitenansicht eines mechanischen Teils.
Das Teil ist 50 Zeichnungseinheiten breit.
Und 24 Einheiten hoch.
Dies sind die Abmessungen des Teils in der realen Welt. Das Teil wird diese Grösse haben, sobald es hergestellt worden ist.
Auf unserem Computer wird das Teil höchstwahrscheinlich in einer völlig anderen Grösse angezeigt wenn wir es mit einem Lineal auf unserem Bildschirm messen würden.
Das ist in Ordnung. QCAD kann unsere Zeichnung in jedem gewünschten Massstab anzeigen.
Die Grösse der Zeichnung auf unserem Bildschirm zu einem bestimmten Zeitpunkt hat keinen Einfluss auf die absolute Grösse der Zeichenobjekte.
In diesem Tutorial lernen wir, wie man die Vergrösserung und die Position der Zeichnungsanzeige auf dem Bildschirm ändert.
Nichts, was wir in diesem Tutorial tun, ändert die absolute Grösse oder Position der Objekte in der Zeichnung.
Wir ändern nur den Teil der Zeichnung, den wir betrachten, und wie nah wir ihn betrachten.
Bitte beachten Sie dies für den Rest des Tutorials.
Vergrössern wir zunächst die Ansicht, um ein Detail der Zeichnung aus der Nähe zu betrachten.
Mit der Schaltfläche mit der Lupe und dem Pluszeichen am oberen Rand können wir den Faktor, mit dem die Zeichnung angezeigt wird, vergrössern.
Mit jedem Klick auf diese Schaltfläche wird die Anzeige der Zeichnung auf dem Bildschirm vergrössert.
Alternativ können wir auch die Plus- oder Gleichheitszeichen-Taste auf der Tastatur drücken.
Das Werkzeug zum Verkleinern verkleinert die Zeichnungsdarstellung entsprechend.
Wir können auch die Minustaste auf unserer Tastatur drücken, um die Ansicht zu verkleinern.
Wenn Ihre Maus über ein Mausrad verfügt, ist es in der Regel bequemer, das Mausrad zu verwenden, um ein Zeichnungsdetail schnell zu vergrössern.
Drehen Sie einfach das Mausrad von sich weg, um die Ansicht zu vergrössern.
Beachten Sie, dass wir mit dem Mausrad die Ansicht in Richtung der Position des Mauszeigers vergrössern. Hier haben wir in Richtung der oberen Mitte des Zylinders vergrössert.
Um die Ansicht zu verkleinern, drehen Sie das Mausrad in Ihre Richtung.
Hier verkleinern wir von der gleichen Stelle aus.
Beachten Sie, dass der Mittelpunkt des Zylinders an seinem Platz bleibt, während der Teil um ihn herum immer kleiner dargestellt wird.
Auf die gleiche Weise können wir jeden anderen Teil der Zeichnung schnell vergrössert darstellen.
Wenn Sie feststellen, dass mit dem Mausrad zu schnell vergrössert und verkleinert wird, können Sie die Geschwindigkeit in den Applikationseinstellungen anpassen.
Je nach Empfindlichkeit des Mausrads müssen Sie den Mausrad-Zoomfaktor möglicherweise auf einen niedrigeren Wert einstellen, z. B. 1,02 statt des üblichen Wertes von 1,2.
Wenn wir ein Detail wie dieses vergrössert dargestellt haben, möchten wir uns vielleicht in der Zeichnung bewegen, so wie wir ein grosses Papier auf unserem Schreibtisch verschieben würden.
In QCAD können wir mit der mittleren Maustaste die Ansicht verschieben. Abhängig von Ihrer Maus kann die mittlere Maustaste das Mausrad sein, das wie eine Taste gedrückt werden kann.
Wir halten die mittlere Maustaste gedrückt, um die Verschiebung der Ansicht zu starten.
Dann bewegen wir den Mauszeiger, um die Zeichnung auf dem Bildschirm zu verschieben.
Wir können dies wiederholen, um die Zeichnung weiter zu verschieben, bis der gewünschte Ausschnitt sichtbar ist.
Mit der Auto Ansicht, dem "Autozoom" können wir jederzeit zur vollständigen Ansicht der gesamten Zeichnung zurückkehren.
Die Auto Ansicht passt den Massstab der Anzeige an, um sicherzustellen, dass alle Teile der Zeichnung sichtbar sind.
Eine weitere Möglichkeit, ein Detail einer Zeichnung zu vergrössern, ist der Fensterzoom.
Dieses Werkzeug vergrössert einen durch ein rechteckiges Fenster festgelegten Bereich.
Wir klicken auf die beiden gegenüberliegenden Ecken des rechteckigen Bereichs, den wir vergrössern möchten, um dieses Detail vergrössert anzuzeigen.
Anstatt auf die beiden Ecken zu klicken, können wir auch die linke Maustaste an einer Ecke drücken und an der anderen loslassen, um ein Rechteck zu ziehen.
Sobald wir die Maustaste loslassen, zoomt QCAD auf den gewählten Bereich.
Genau wie andere interaktive Werkzeuge in QCAD, bleibt das Fensterzoom-Werkzeug aktiv, bis wir es mit einem Klick auf die rechte Maustaste oder durch Drücken der Escape-Taste abbrechen.
Sie sollten nun eine Vorstellung davon haben, wie Sie die Ansicht Ihrer Zeichnung mit den grundlegenden Navigationstechniken verändern können.
Übern Sie dies unbedingt mit Ihrer eigenen QCAD Installation.
Vielen Dank, dass Sie sich dieses QCAD-Tutorial angesehen haben.
